Nová Lehota - Slovensko,
Súkromné wellness doma - úplný wellness zážitok doma!

loading
wellness doma
  • wellness doma
  • domáce wellness - stavba wellness
  • privátne wellness
  • Výstavba wellness
  • Privátne wellness
  • Stavba wellness
  • Projektovanie wellness 2D
  • Wellness doma plán 3D

Kto by nechcel relaxovať vo vlastnom súkromnom wellness?

 

Je ťažké nájsť lepšiu rekreáciu! Wellness doma nám umožní to, že netreba cestovať ani čakať a nikto Vás nebude počas relaxácie rušiť! Zvyčajne tieto dôvody sú prečo si dávájú naši zákazníci postaviť súkromné wellness doma.

V rámci tohto projektu sme realizovali tiež súkromné wellness. Náš klient nás najskôr kontaktoval so žiadosťou o realizáciu interiérovej kombinovanej sauny na mieru.S manželkou prišli do našej sauna výrobne aby si sme si osobne prekonzultovali detaily stavby sauny na mieru. 

Počas nasej konzultácie vnikol nárok na to, ze by si dali postavit kompletné súkromné wellness doma. Miesto bolo dané. Existujúca budova bola práve v prestavbe v ich víkendovom dome. Nádherná panoráma ponúkaná budovou bola perfektná na vytvorenie jedinečného domáceho wellnessu.

Náš tím dizajnérov ihned začal prácu. Spolu s klientom sme definovali štýl wellness-u, ktorý nesie rustikálne, klasické, ale aj moderné prvky.
Vďaka tejto kombinácii a použitiu prírodných materiálov sa nám podarilo vytvoriť teplý, prírodný efekt, ktorý naši zákazníci majú veľmi radi. Vedome,  krok po kroku sme postupovali pri projektovaní wellness a takto sme docielili privátny wellness doma, ktorý spÍňa všetky potreby súkromného wellness.

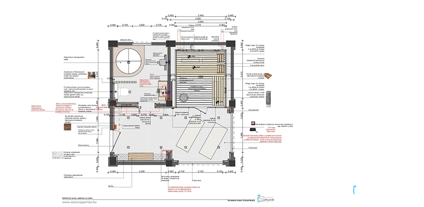
Po naprojektovaní wellness sa mohla začať kvalitná práca – výstavba wellness. Privátne wellness doma je rozdelené do troch častí. Vo wellness centre sa nachádza exkluzívna kombinovaná sauna na mieru, kúpeľňa s ponornou kaďou , sprchovacím kútom a WC.

K dispozícii je tiež dizajnová oddelovacia priečka s LED osvetlením a oddychová miestnosť s veľkými oblokmi s panoramatickým výhľadom.

 

Kúpeľňa a oddychový priestor sú oddelené sklenenými posuvnými dverami bežiacimi v špeciálnej stene. Na oddelovacej stene je špeciálna himalájska soľná stena a špeciálny policový systém. Himalájska soľná stena s led osvetlením a hviezdnou oblohou na strope poskytuje útulnú atmosféru pre súkromné wellness.

Sauna,  steny a strop sú pokryté prvotriednym dreveným profilom z tirolského thermowood smreku zabezpečujúc teplú, rustickú atmosféru privátného wellness. 


V oddychovej miestnosti sa nachádza aj skriňa vedľa ktorej sú umiestnené podsvietené dizajnové boxy s kameňmi. V jednej z týchto dizan boxov sme tiež skryli elektroniku pre ponornú kaďu. Vďaka nášmu vynikajúcemu tímu stolárov bola realizácia súkromného wellnessu bezproblémová!

Týždeň pred Vianocami sme úspešne odovzdali wellness. Privátne wellness doma v tedy už žiarila v celej svojej kráse. Na radosť nášho klienta, už vianočné sviatky mohol stráviť v intímnom rodinnom kruhu vo vlastnom privátnom wellness.

Chceli by ste dostať viac informácií?

 

Skontaktujte sa s naším wellness projektorským tímom na kontaktoch:

West Invest Holding s.r.o.

 

Lévay Bendegúz

  Bendegúz Lévay
  International Sales Director - HU/EN/DE
  Phone: +36 70 362 5597
  E-mail: info@isaunahome.com

Online prieskum sauny

 

Kupujte priamo od výrobcu sauny exkluzívnej kvality za ceny výrobcu.

■ Alebo zadajte Vaše kontaktné údaje pomocou vyplnenia formulára a náš kolega Vám zavolá!

Poslať

Sauna na mieru

Exkluzívne a individuálne riešenia vo výrobe a stavbe sauny

Kombinovaný sauna domček

Premium exterierové sauny, wellness sauna domčeky.

Sauna wellness spa

Premium kvalita od výrobcu sauny, s medzinárodným certifikátom TÜV

Interiérová architektúra

Exkluzívna interierovovy dizajn plánovanie a realizácia v jednej ruke

Himalájska soľná izba

Riešenia interiéru s použitím himalájskej soli.

sk hu de en at cz
Obsah koša
0