Košice,
Vlastné wellness doma

loading
vlastné wellness Bratislava
  • vlastné wellness Bratislava
  • wellness doma
  • domáce wellness Bratislava
  • súkromné wellness projektovanie
  • vlastné wellness realizácia
  • sauna Bratislava
  • wellness projektovanie
  • vlastné wellness projektovanie

Vlastné wellness doma od iSauna Design tímu!

 


Máš už vlastné domáce wellness, alebo zatiaľ hladáš len nápady k realizácií vlastného wellness? Rozmýšlaš o naozaj jedinečnej realizácií domácého wellness? V jednom takom domácom wellness čo je jedinečný, šitý na mieru a odzrkadluje tvoju osobnosť?  Mám pre teba dobrú správu! Nemusíš ďalej surfovať na webe!  Si na najlepšom mieste, aby si zrealizoval svoj vlastný wellness projekt.

Medzi wellness referenciami iSauna manufaktury nájdeš svoj štýl. Nech sa jedná o klasický, moderný, minimalistický štýl u nás sa sny splnia! Náš dizajnérsky tím vášnivo a cielavedome hľadá najnovšie trendy a personalizované riešenia. Znie to dobre, však? Ak sa vieš aj ti stotožniť s našou filozofiou, tak už nezostáva nič iné, než sa skontaktovať s nami, aby sme spolu naprojektovali a zrealizovali „Tvoje”vlastné wellness.

 

Tu je jedna wellness realizácia, ktorá sa začala rovnakým spôsobom. Naš klient si teraz už deň čo deň môže užiť pohodlie domáceho wellnessu.

V tomto wellness projekte nás klient osobne nekontaktoval. Dôvod bol veľmi jednoduchý, vzdialenosť bola veľká. V prvom kruhu sme nadviazali kontakt e-mailom.
Toto nasledovali videohovory a výmeny e-mailov. Po prezretí naších referencií a personalizovaných návrhov, nápadov už zákazník maximálne dôveroval v našej odbornosti. Komunikácia prebehla úspešne a takto sme úplne pochopili predstavu a požiadavky nášho zákazníka.

Počas rozhovoru sa ukázalo, že je veľmi hrdý na svoju krásnu záhradu v japonskom štýle. Chceli sme využiť blízkosť tejto záhrad pri vytvorení domáceho wellness.

 

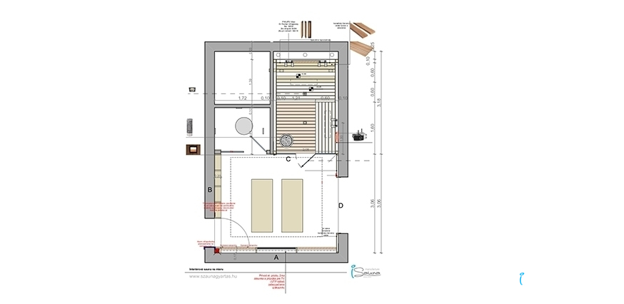
Z wellness miestnosti cez panoramatické zasklenie je priamy výhľad na vzácnu záhradu! V súkromnom wellness centre nájdete sprchu, kombinovanú saunu a oddychový priestor.

Z naších prvotriednych drevených obkladom zákazník zvolil provotriedny kanadský červený céder profil na domáce wellness. Strop sauny a oddychového priestoru sú vyhotovené tiež z tohto profilu ako aj dizajnové drevené prvky na stenách wellness.

Priznajme si to, bola to veľmi dobrá voľba klienta! Dizajnové drevené prvky na steny sa vyhovili všetko ručne v minimalistickom štýle. Náladové podsvietenie wellness sú zabezpečené skrytymi stmievateľnými RGB LED svetlami. 

V oddychovej časti domáceho wellness bola navrhnutá aj veľká himalájska soľná stena s krbom a inteligentným televíziou.



Ak by si i ty chcel zrealizovať svoje vlastné wellness doma, neváhajte a skontaktujte sa s nami a začnime spoločnú prácu!

Chceli by ste dostať viac informácií?

 

Skontaktujte sa s naším wellness projektorským tímom na kontaktoch:

West Invest Holding s.r.o.

 

Lévay Bendegúz

  Bendegúz Lévay
  International Sales Director - HU/EN/DE
  Phone: +36 70 362 5597
  E-mail: info@isaunahome.com

Online prieskum sauny

 

Kupujte priamo od výrobcu sauny exkluzívnej kvality za ceny výrobcu.

■ Alebo zadajte Vaše kontaktné údaje pomocou vyplnenia formulára a náš kolega Vám zavolá!

Poslať

Sauna na mieru

Exkluzívne a individuálne riešenia vo výrobe a stavbe sauny

Kombinovaný sauna domček

Premium exterierové sauny, wellness sauna domčeky.

Sauna wellness spa

Premium kvalita od výrobcu sauny, s medzinárodným certifikátom TÜV

Interiérová architektúra

Exkluzívna interierovovy dizajn plánovanie a realizácia v jednej ruke

Himalájska soľná izba

Riešenia interiéru s použitím himalájskej soli.

sk hu de en at cz
Obsah koša
0